A Semi-Transparent Box Villa

A Semi-Transparent Box Villa

A Semi-Transparent Box Villa

A Semi-Transparent Box Villa

A Semi-Transparent Box Villa

A Semi-Transparent Box Villa

A Semi-Transparent Box Villa

A Semi-Transparent Box Villa

A Semi-Transparent Box Villa

A Semi-Transparent Box Villa

A Semi-Transparent Box Villa

ویلای جعبه‌ای نیمه‌شفاف

موقعیت: جزیره قشم ، ایران

کارفرما: آقای حریری

مصالح: آجر، سیمان و چوب

تاریخ طراحی: ۱۴۰۴

مساحت زمین: ۱۲۰۰m۲

مساحت ساخت: ۳۸۵m۲

معماران: سروش روغنیان، الهه موسوی

تیم طراحی: پویان سوکی، روژین پورزنگنه، هلیا مهدوی

سی جی آرتیست: محمود علمی

گرافیک: سارا داداش پور

اجرا: گروه ساختمانی زیما

توضیحات:

 متن تهیه شده توسط معماران:

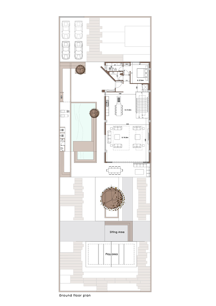
این پروژه در زمینی به مساحت ۱۲۰۰مترمربع و در بستر یک شهرک ساحلی در جزیره قشم واقع شد است.بنای اولیه با سطح اشغال ۲۰۰مترمربع در دو طبقه، به دلیل ضوابط شهرک و خواسته های کارفرما، امکان توسعه در پلان وجود نداشت.

از این رو روند بر حفظ حجم باکسی شکل موجود استوار شد؛ حجمی که با افزودن یک پوسته نیمه شفاف آجری در بخش فوقانی  بازتعریف گردید. این پوسته نه تنها پیرامون بنا را دربرمیگیرد، بلکه در امتداد سقف و کف طبقات نیز گسترش یاقته و در بخش هایی با ایجاد گشودگی، تراس ها و بازشوها را شکل می دهد. در برخی نقاط نیز بنا بر نوع کاربری، به صورت متحرک عمل کرده و امکان تغییرپذیری برای بازشوها را فراهم می سازد.

علاوه بر آن در فضای داخل پروژه، تضاد بین مصالح ادامه پیدا می‌کند: جعبه‌ی آجری بالایی و جعبه‌ی سیمانی پایینی به درون فضا امتداد می‌یابند و در پلکانی انتقالی که آجر و سیمان در یک حرکت فضایی واحد به هم می‌رسند، با یکدیگر برخورد می‌کنند. 

پوسته آجری در تضاد با آفتاب شدید قشم، نقش کلیدی در تامین آسایش حرارتی فضاهای داخلی دارد. در ادامه، با ساماندهی محوطه، این پوسته به فضای باز نیز کشیده شد و به صورت سایه بان نیمه شفاف بر فراز فضاهای استخر و پارکینگ نیز ادامه یافت؛ تداومی که انسجام پروژه را نیز رقم میزند و خود را از درون ساختمان به محوطه سرایت می دهد.

 

 

 اثر برگزیده‌ی شایسته‌ی تقدیر در بخش ساخته شده سومین دوره‌ی جایزه ویلا ۱۴۰۴ با کد شرکت کننده VA-۰۳۲۵

جهت ملاحظه اخبار این دوره از جایزه بزرگ ویلا به بخش اخبار وبسایت رسمی مجله ویلا مراجعه نمایید.

فهرست نهایی برگزیدگان شایسته‌ی تقدیر سومین دوره‌ی دوسالانه‌ی جایزه‌ویلا ا علام شد.